天坛公园,曾藏着一座“细菌工场”
新华社北京12月12日电(记者魏梦佳、杨淑君)红墙灰瓦的院落里,站立着一棵600多年的参天古槐,耳畔鸟鸣啾啾。名为“神乐槐”的古树,见证了明清君主祭天祈谷的虔敬,也在历史更替中泣诉一段干戈缺点。
天坛,是天下现有范畴最大、保存最好意思满的古代皇家祭天建筑群,每年引诱无数中外搭客赶赴参不雅。“神乐槐”便孕育于天坛公园西南角的神乐署——明清时代培养祭祀乐舞生的场面。

光彩安谧的祭祀文化和礼乐端淑令东说念主聚精会神,却鲜有东说念主知,80多年前,这里还曾藏着一座“细菌工场”,对中国民众犯下滔天缺点。
宛平城炮火未歇,天坛已被虎狼觊觎。1937年8月,侵华日军占领神乐署,天坛从此遭逢前所未有的劫难。
神乐署内北侧,一面斑驳灰墙上,嵌有两块汉白玉碑,碑上刻有“侵华日军细菌部队名胜”的字样。“‘九·一八’事变后,日本侵扰军在中国成立了大范畴的细菌部队,总东说念主数达两万东说念主……”碑文上写说念。

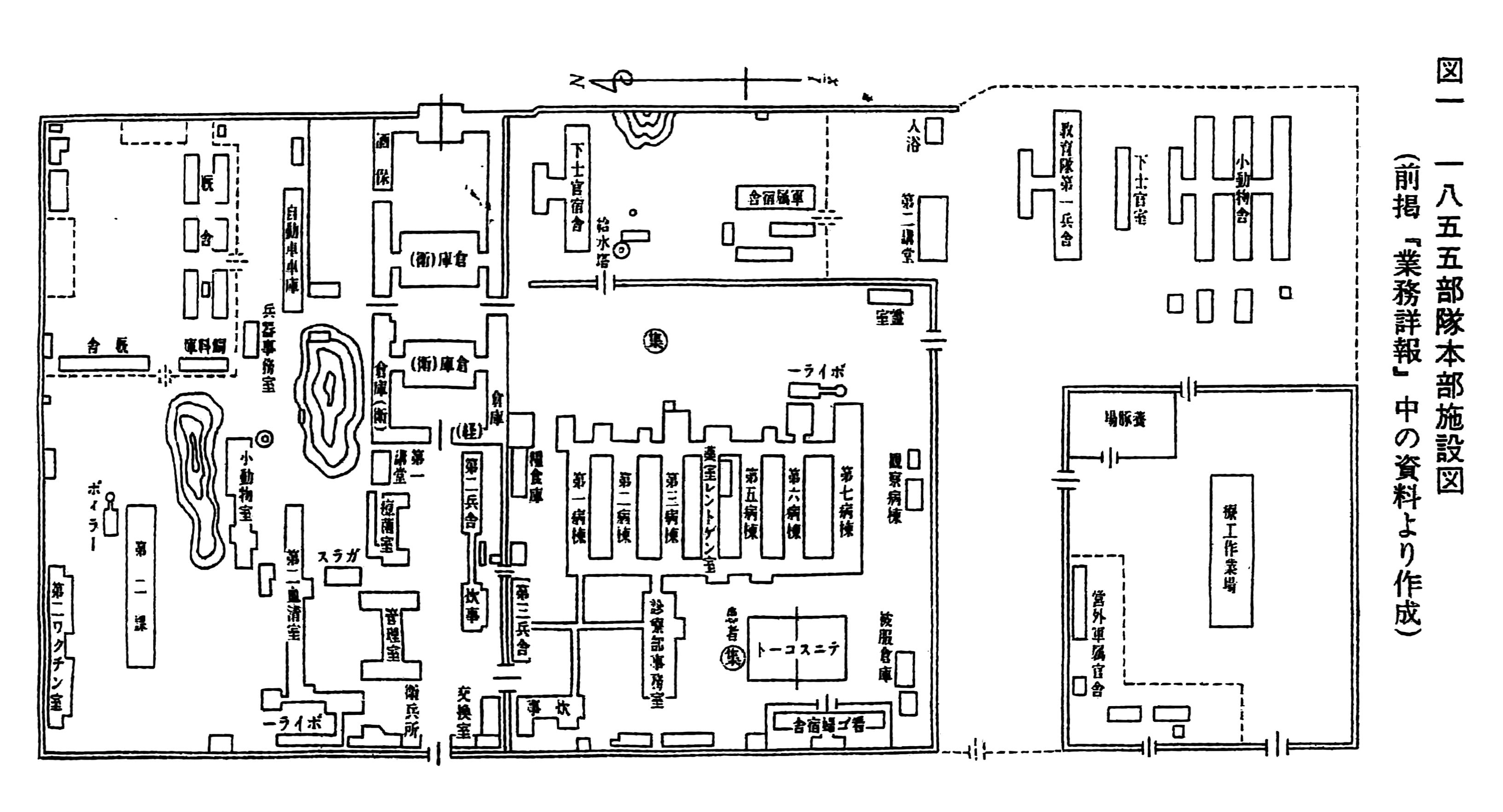
1937年,侵华日军干预位于天坛神乐署的中央防疫处北平制造所“考试”,了解该处的尺度开导、工具器械、实践室以及处治生物制剂的身手。1940年,经日本天皇号召,北支那防疫给水部认真成立,代号甲第1855部队(简称1855部队),总部就设在天坛神乐署——这是日军在华北地区建树的细菌战部队。
披着野战给水和传染病驻防的外套,实则精巧栽植细菌,对华开展细菌战。天坛公园红色教唆员梁梓昱先容,1855部队研制和分娩鼠疫、霍乱、伤寒、痢疾、黑热病、疟疾等致命细菌和原虫,后再将其研制成细菌兵器,蹂躏中国庶民。
“侵华日军731部队队长石井四郎,是细菌战的扩充者、组织者和实施者。笔据一些而已发现,1855部队许多主干成员皆有在731部队的投军资格。”梁梓昱说。

何以罗致天坛神乐署作为“细菌工场”?
梁梓昱阐扬,这里原为中央防疫处,日军在这不仅可使用现成的尺度开导、器材和工具,且位置潜藏,便于精巧开展细菌实践等活动。
北京市档案学会副文牍长张斌先容,1855部队在北京设有本部和下属三课,第一课(病理实践)、第二课(制造菌苗)、第三课(细菌兵器缱绻所),而其中的本部录取二课就在天坛神乐署。神乐署北侧被占领后告成用于广大分娩多样细菌战剂,“他们还挖了地下冷库,特意用于储存菌苗”。
北京市档案馆馆藏的《北京地区防疫委员会防疫课霍乱驻防职责酬谢书(1943年)》中,一份《(民国)三十二年六至十月患者路倒死亡者消毒职责统计表》表露:夙昔6月和7月,北京独一3例霍乱感染病例,无死亡酬谢;8月,霍乱病例聚合暴发;舍弃10月底,发现霍乱“患者264例,死亡1780例,路倒92例”。

日本细菌战缱绻民众、滋贺医科大学名誉考验西山胜夫近日向新华社记者展示了一份他新发现的《北支那防疫给水部甲第一八五五部队 留守名簿》的文档扫描件。这是首页《北支那防疫给水部支部出张所一览表》。新华社发
“日军为研制杀东说念主细菌兵器,竟用中国东说念主进行活体实践,广大中国被俘士兵和子民被手脚念实践对象惨遭杀害。”神乐署碑文上写说念。“为障翳缺点,他们还有一套突出称谓,如把老鼠称为‘饼’,把跳蚤称为‘粟’,把活体实践的东说念主称为‘猿’。” 梁梓昱说。
1945年8月15日,日本让步纳降。梁梓昱说,音问一传来,1855部队就要害捐躯细菌部队的而已,撤销罪证,“繁芜职责执续了整整三天三夜,仅实践用的跳蚤,就拉走了一万多桶”。干戈刚竣事,日军就罢阐发这支部队,并妄图把它从历史中抹去。
罪证不错撤销,历史不会消除。
新中国成立后,天坛神乐署慢慢获得成立。2012年,被列入第一批北京市爱国方针教学基地。
尽管1855部队作歹的历史遗迹难寻,梁梓昱和共事们多年来仍在不绝整理操办那段历史的而已,向参不雅者文告日军在此犯下的滔天缺点。舍弃当今,操办教唆已达万余场。
“侵华日军的731部队民众皆熟习,1855部队你们知说念吗?”教唆前,梁梓昱总会这么问不雅众。
“民众广大不知说念1855部队,听了教唆后皆很恐慌。”梁梓昱说。

在曾被侵华日军用于办公场面的神乐署院落,如今,“神乐槐”仍是挺拔站立。
“侵华日军细菌战给中国民众形成了无法隐藏的疼痛倒霉,干戈缺点无法抹去,惨痛历史扼制忘却,咱们更应存眷瓮中捉鳖的和平。”张斌说。
